Baerz & Co is een landelijk samenwerkingsverband van zorgvuldig geselecteerde boutique luxury makelaars. Samen vormen wij één netwerk, met één gedeeld aanbod. De woningen die u op onze website ziet, zijn afkomstig van alle aangesloten kantoren binnen Baerz & Co. Daardoor is niet ieder object rechtstreeks door ons kantoor in verkoop, maar door een gespecialiseerde collega binnen ons netwerk. Heeft u een woning gevonden die u aanspreekt en wilt u meer informatie? Dan brengen wij u graag persoonlijk in contact met de betreffende verkoopmakelaar, zodat u direct en zorgvuldig wordt begeleid.

'S-HERTOGENBOSCH
Sint Janskerkhof 19 - 5211 LA
Netherlands

Jenne de Haan profile image
Jenne de Haan
Real Estate Agent
€825,000 k.k.
Living Area
125m2
Plot Size
N/A
Bedrooms
3

Description

Live in one of the most special locations in 's-Hertogenbosch

Located in the idyllic Sint Janskerkhof, right next to St. John's Cathedral, is this spacious and characterful upstairs apartment of approximately 125 m² with a roof terrace. A unique combination of tranquility, history, and city life, right in the heart of the city center yet surprisingly quiet.

Monumental trees, cobblestones, and almost exclusively local traffic create a serene atmosphere, while the Parade, the Markt, the city center, and the Bossche Broek are all within walking distance.

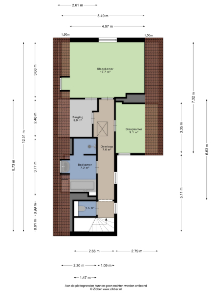
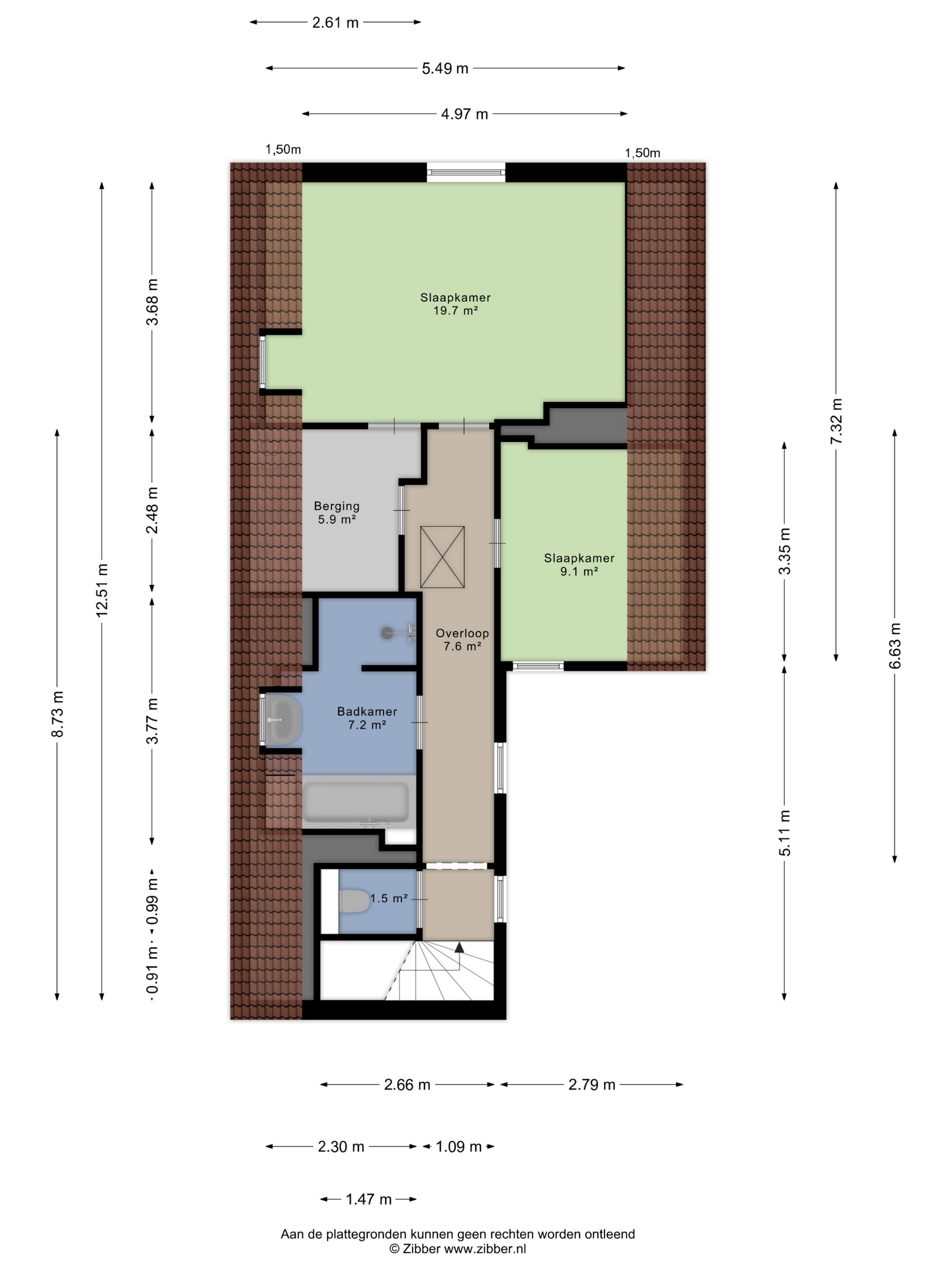
Layout
Ground floor
Private entrance with an exclusive hallway, featuring beautiful Winckelmans tiles and space for a coat rack and bicycle.

Living room floor
The living room is situated on the corner, offering a beautiful view of St. John's Cathedral and the adjacent square. The semi-open kitchen is connected without feeling like you're cooking in the living room. In addition to the roof terrace, this floor also features an additional room, ideal as a study or guest room.

Second floor
Two bedrooms, the master bedroom with a walk-in closet. The bathroom was renovated in 2011 and features a bathtub, a spacious walk-in shower, and a sink – naturally with a view of St. John's Cathedral.
The second toilet is also separate from the bathroom.

Parking is available with a permit or just a stone's throw away in the St. John's parking garage.

A home like this rarely becomes available: spacious, charming, and situated in a truly unique location.

Download the brochure here or request a viewing. We're happy to assist you.

Features

Transfer of ownership
Asking Price
€ 825.000 k.k.
Status
beschikbaar
Acceptance
in overleg
Construction
Kind of house
Bovenwoning
Building type
appartement
Construction period
1957
Energy rating
C
Roof type
dwarskap
Bedrooms
3
Bathrooms
1
Surface Areas And Volume
Living Area
125 m2
Other indoor space
2 m2
Exterior space attached to the buildinge
7 m2
Volume in cubic meters
419 m3
Facilities
Dakraam
Aan rustige weg
In centrum
Vrij uitzicht
Beschutte ligging
Baerz & Co Property Brochure

Brochure

Floor Plans

de Haan Schippers Makelaars

Larenseweg 53
7241 CM Lochem

dehaan@dehaanschippers.nl
+31 573 25 82 58

www.dehaanschippers.nl

Information / Viewing request

Jenne de Haan profile image
Jenne de Haan
Real Estate Agent

Buying a Luxury Property in 's-Hertogenbosch

's-Hertogenbosch offers a refined blend of history, culture, and contemporary living, attracting a globally minded community who value privacy, aesthetics, and seamless services within a vibrant, authentic Dutch environment.