Villa Roermond in Roer-Zuid brings together considered architecture and refined contemporary living on a tranquil 729 m² plot. This property, meticulously renovated and expanded in 2003, features 159 m² of living space and balances understated luxury with a focus on sustainability. The villa’s bright and spacious layout includes a succession of living rooms — sitting, television, and dining — unified by large windows and views across a professionally landscaped garden. Light fills the interiors, while French doors open to a private terrace enveloped in calm.
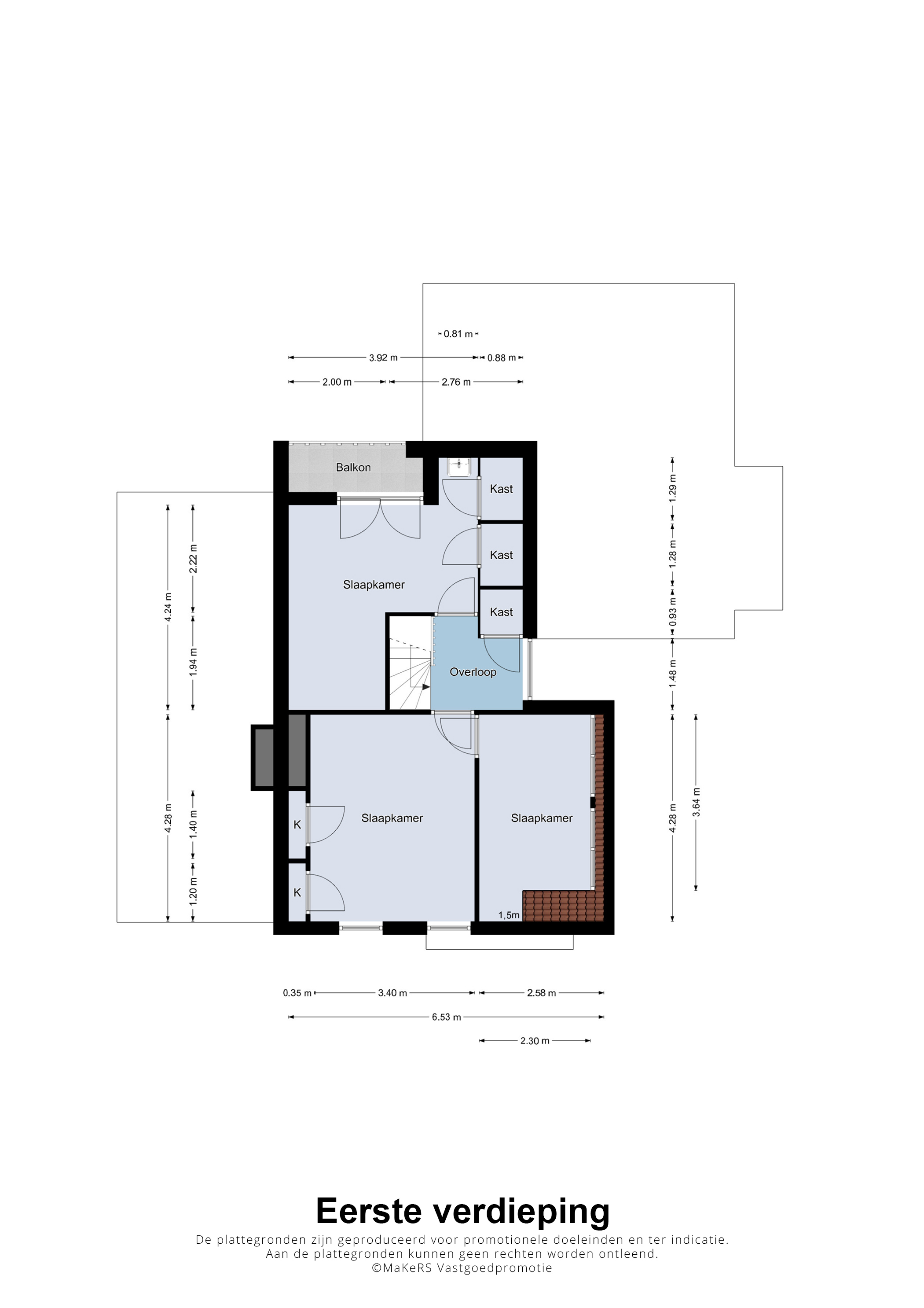
The Poggenpohl kitchen is equipped with built-in appliances and high-quality materials, inviting culinary exploration. Ground-floor living is elevated with a spacious master suite, complete with private bathroom, balcony, and underfloor heating, alongside a practical office and guest toilet. On the first floor, three further bedrooms offer flexibility for family or guests, with custom wardrobes and their own washbasin and balcony access.
Below, the basement incorporates an indoor garage, wine cellar, and abundant storage. Energy-saving measures such as roof, wall, and floor insulation, HR++ glazing, 18 solar panels, and a modern heating system grant the home an energy class B rating, ensuring comfort is matched by responsible efficiency. The location in the serene, sought-after Roer-Zuid district allows for quiet residential living, with the center of Roermond and amenities close by. This villa for sale in Roermond represents a harmonious blend of privacy, elegance, and modern sustainability.
Explore Roermond with Baerz, Your Trusted Personal Property Finder & Advisor
Navigating Roermond’s discreet property market requires both local insight and broad perspective. A seasoned advisor can connect clients to prestige homes not publicly listed, handle sensitive negotiations, and anticipate evolving market dynamics. Their in-depth understanding bridges cultural nuances and legal frameworks, ensuring transactions unfold seamlessly, from initial search through closing. As the market grows more selective, tailored advisory service remains an essential asset for discerning buyers and sellers.