Ons kantoor is lid van Baerz & Co Luxury Homes; een internationaal platform dat exclusieve woningmakelaars met elkaar verbindt. Neem contact op met ons secretariaat voor meer informatie over het landelijke aanbod, waarvan u hieronder een selectie kunt bekijken.

ROTTERDAM
Molenlaan 15 - 3055 EE
Netherlands

Joris van Oosten profile image
Joris van Oosten
Real estate agent
€1,200,000 k.k.
Living Area
177m2
Plot Size
379m2
Bedrooms
4

Description

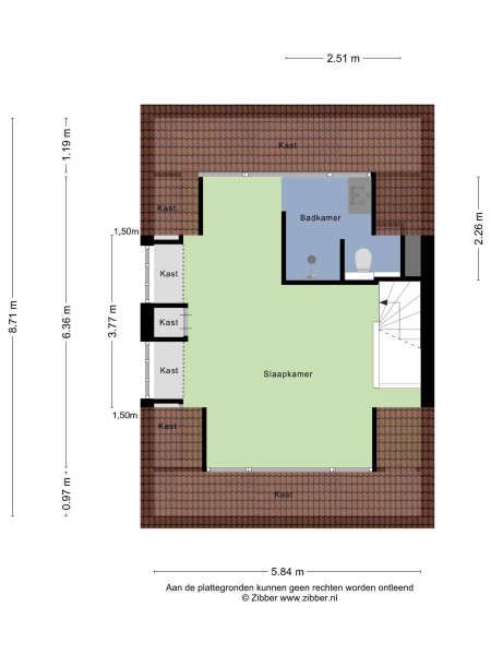
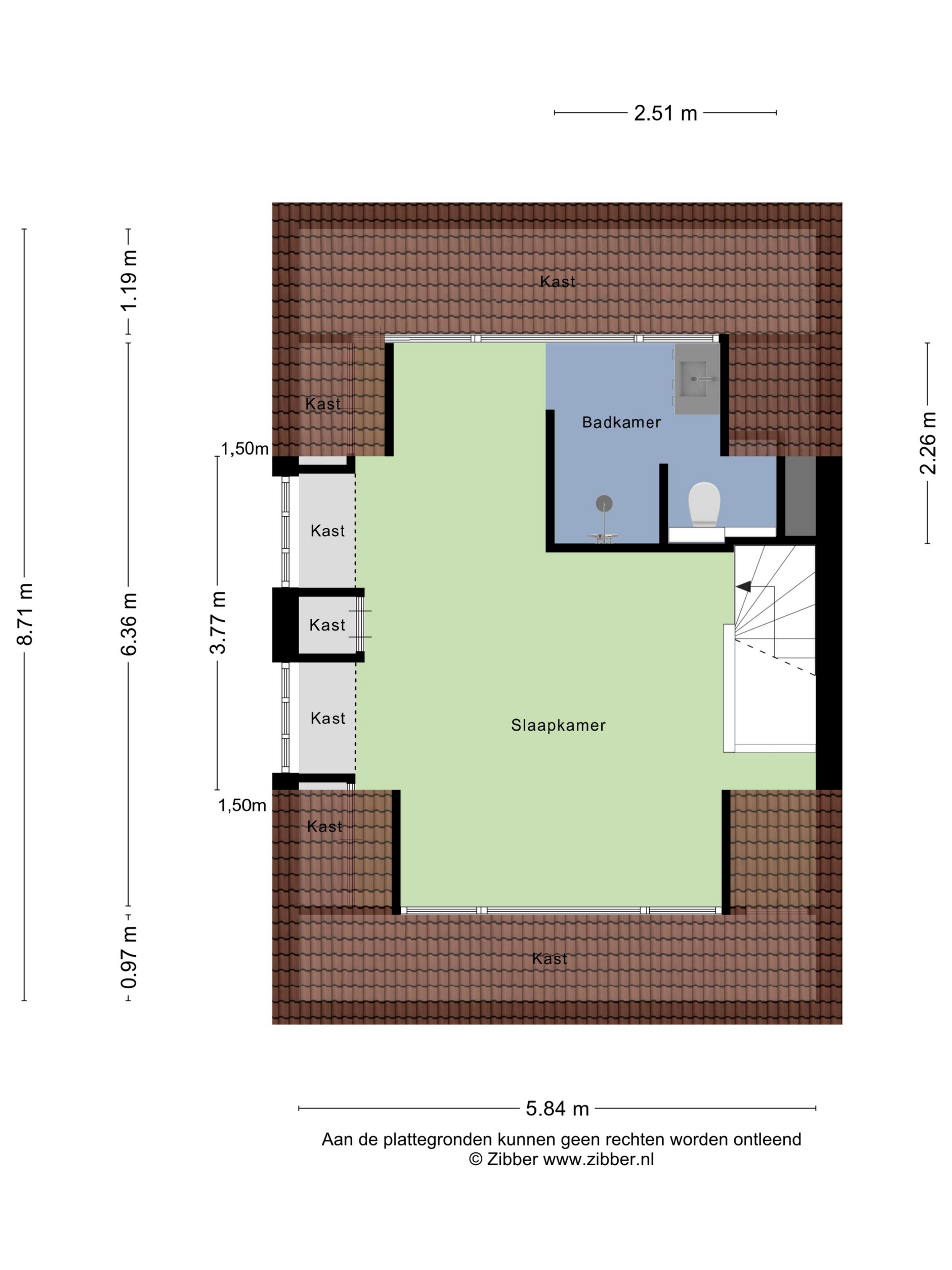
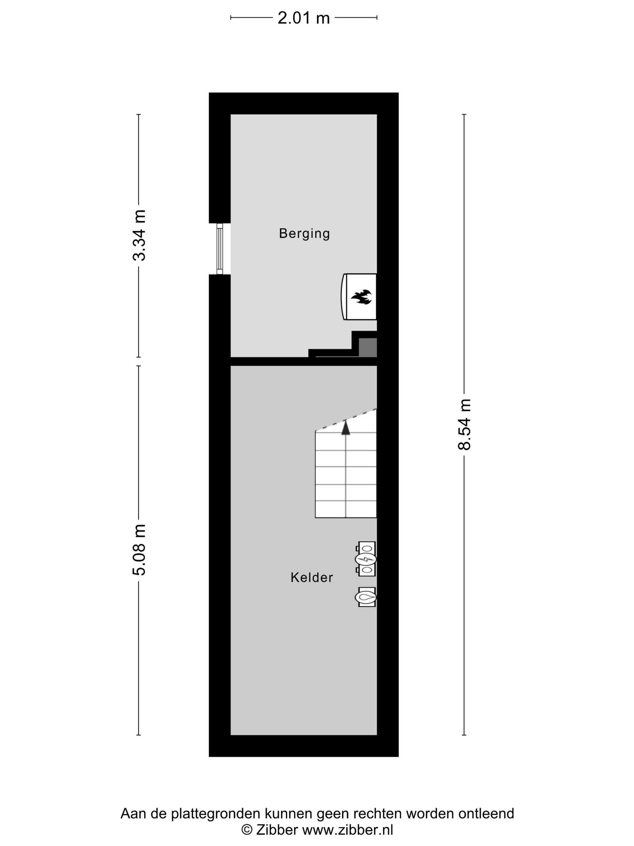
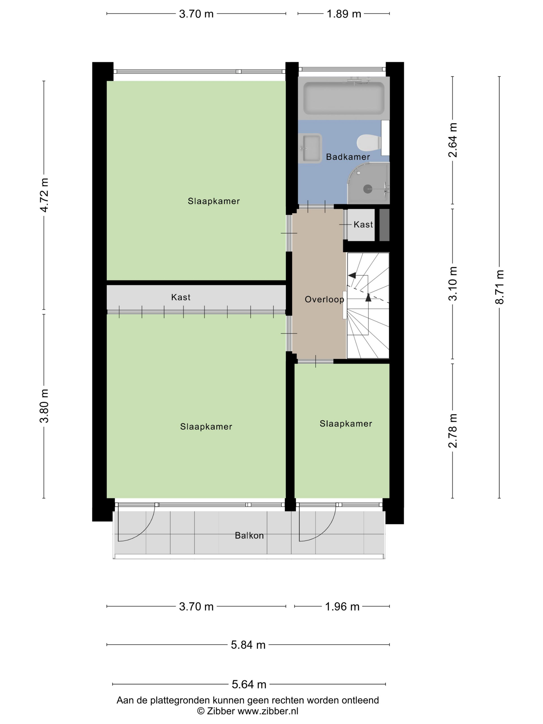
This semi-detached house Rotterdam Molenlaan presents a calm retreat set on approximately 379 m² of freehold land in the Hillegersberg district. The property spans 177 m² of living area and stands as a contemporary reimagining of a classic 1956 family home, completed under architectural guidance in 2019. Four bedrooms and two modern bathrooms are thoughtfully arranged over three levels, with a luxurious master suite occupying the second floor and offering views over the landscaped surroundings.

Light defines the interiors. A full-width glass façade with double sliding doors marries the large living space to a sunny, deep back garden, where privacy and child-friendly design coexist. The open kitchen is fitted with high-end appliances including a wine climate cabinet and connects easily to a practical utility room. Details such as double glazing, air conditioning, mechanical ventilation, fibre optic cable, alarm, and twelve solar panels installed in 2023 speak to modern comfort and energy consciousness.

A private driveway accommodates two vehicles with an EV charging station, and both front and back gardens have been meticulously landscaped. The location places renowned schools, sports clubs, Bergse Plassen, and the shops of Bergse Dorpsstraat within easy reach, while public transport and main roads keep the city close at hand. This luxury villa for sale in Rotterdam Molenlaan invites a balanced life, marked by architectural clarity and a connection to its green setting.

Explore Rotterdam with Baerz, Your Trusted Personal Property Finder & Advisor

Navigating Rotterdam’s dynamic property market requires seasoned advisors who combine local intelligence with international client service. Discreet access to off-market listings, targeted negotiation strategies, and in-depth knowledge of regulatory nuances allow sophisticated buyers and sellers to make finely tuned decisions. Such expertise optimises investment opportunities and safeguards interests at every stage.

Special Features

Solar panels
Alarm system
Air conditioning

Features

Transfer of ownership
Asking Price
€ 1.200.000 k.k.
Status
verkocht onder voorbehoud
Acceptance
in overleg
Construction
Kind of house
Eengezinswoning
Building type
twee onder een kapwoning
Construction period
1956
Energy rating
C
Roof type
zadeldak
Bedrooms
4
Bathrooms
2
Surface Areas And Volume
Living Area
177 m2
Other indoor space
17 m2
Exterior space attached to the buildinge
14 m2
External storage space
8 m2
Volume in cubic meters
689 m3
Plot Size
379 m2
Facilities
Mechanische ventilatie
Alarminstallatie
Tv kabel
Airconditioning
Glasvezel kabel
Zonnepanelen
In woonwijk
Beschutte ligging
Baerz & Co Property Brochure

Brochure

Videos

Floor Plans

J.J. Van Oosten Makelaardij BV

Straatweg 225
3054 AG Rotterdam

info@vanoostenmakelaardij.nl
+31 10 422 11 00

www.vanoostenmakelaardij.nl

Information / Viewing request

Joris van Oosten profile image
Joris van Oosten
Real estate agent