Ons kantoor is lid van Baerz & Co Luxury Homes; een internationaal platform dat exclusieve woningmakelaars met elkaar verbindt. Neem contact op met ons secretariaat voor meer informatie over het landelijke aanbod, waarvan u hieronder een selectie kunt bekijken.

THOLEN
Slikkenburg 1 - 4691 TC
Netherlands

Jenne de Haan profile image
Jenne de Haan
Real Estate Agent
€739,000 k.k.
Living Area
153m2
Plot Size
30430m2
Bedrooms
2

Description

Living with a view of the harbor, from your own spacious terrace, in an apartment with the comfort of a home? Welcome to Slikkenburg 1 in Tholen - a special and exclusive apartment on the first floor, with its own entrance and indoor garage. This unique home offers the ultimate feeling of freedom, space and luxury, right on the water.

An extraordinary location, exceptional living enjoyment
This stylish apartment is located in a truly unique spot: right on the attractive harbor of Tholen. On the entire waterfront of the apartment is a spacious terrace, equipped with electric awnings over the entire width. This allows you to enjoy outdoor living at any time of day - with a view of the harbor and the rippling water as your daily backdrop.
The possibility of docking your own jetty makes this apartment extra special. Imagine waking up with a view of your own boat and being able to step directly onto the water. A rare opportunity for the true water lover.

Spacious and bright living
With a living area of no less than 153 m², this apartment offers more than enough space. The large windows provide an abundance of natural light in both the living room and the two bedrooms - and always with a view of the water.
The living room is generously sized and offers plenty of layout options. The kitchen is functional and practical, with a convenient pantry attached. The bathroom is complete and comfortable, and thanks to direct access to the garage from the hall, practicality is also guaranteed.

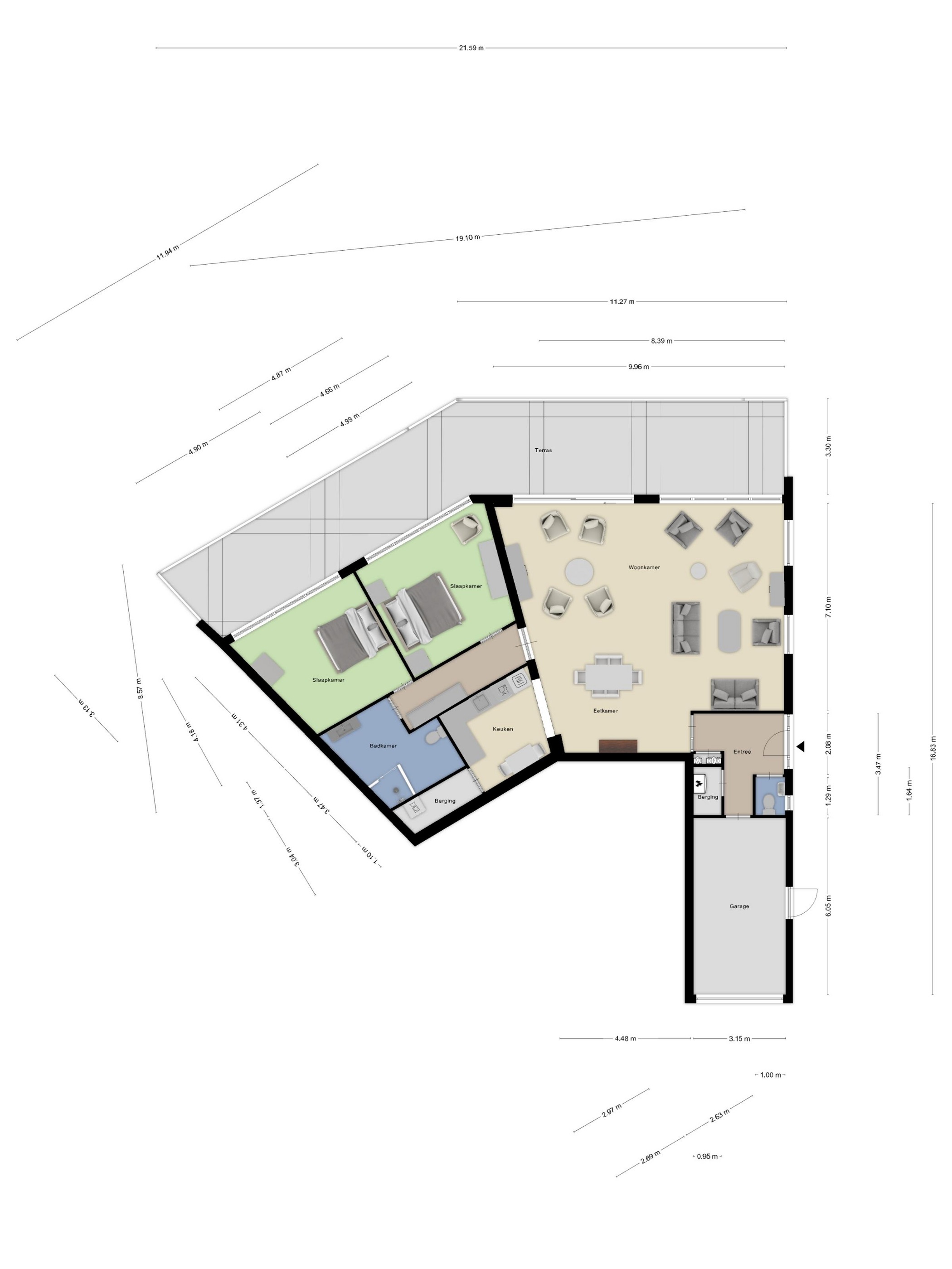
Layout in brief:
- Private entrance on the first floor
- Indoor garage (accessible from the hall)
- Spacious living room with water view
- 2 spacious bedrooms with large windows
- Kitchen with utility room
- Bathroom with bath, shower and 2nd toilet
- Large terrace with full width awnings
- Possibility to build your own jetty

Exclusive, spacious and right on the harbor
Slikkenburg 1 is not a standard apartment, but a home with character, space and exceptional location. Ideal for those who want comfortable living on the water, with all the amenities of the charming center of Tholen within easy reach.
Experience the luxury of living by the harbor - this is your chance!

Description:
Apartment located on the first floor with independent entrance: (concrete floor)
Hallway / entrance with storage closet with HR-combi boiler and WTW unit, wall finish stucco, tile floor with hatch to the crawl space, ceiling finished with spraying;

Meter with 7 groups, a cooking group and 2 RCDs;

Tiled toilet with hand basin;

living room overlooking the harbor with sliding doors to the spacious terrace of 70 sqm, wall finish stucco, tile floor, ceiling finished with painting;

Semi open kitchen with corner kitchen (2013), equipped with a granite countertop with sink, built-in induction hob, -cooler, -combi oven/microwave, -dishwasher and an extractor hood, wall finish stucco, tiled floor, ceiling finished with painting;

utility room with hatch to the crawl space, space for washer / dryer, wall finish stucco, tile floor, ceiling finished with painting;

from the tussenhal: with a tiled floor, walls finished with stucco and ceiling with painting, access to:

bedroom right front (master) overlooking the water, wall finish stucco, floor finished with carpet, ceiling finished with spraying;

rear right bedroom, wall finish stucco, floor finished with carpet, ceiling finished with spray paint;

tiled bathroom, equipped with a bathtub, shower cubicle with jets and massage panel with low entry, toilet, bathroom cabinet with double sink and a radiator;

from the hall a door to the garage with a wicket door and electric roller door, wall finish stucco, tiled floor and ceiling clad with wood wool cement boards.

Building characteristics:
Apartment complex:
Traditionally built in cavity with plastic window frames except the front door, built in brick, upper floors in concrete and flat roof construction covered with bituminous roofing.

Insulation:
The apartment has floor, cavity wall and roof insulation as well as insulating glazing.

Heating and hot water supply:
The apartment is equipped with underfloor heating as main heating. The HR-combi boiler (manufactured Remeha Avanta, built 2018) for heating and hot water supply and the WTW unit (manufactured Afpo HR Optifor) for ventilation, are located in the storage closet in the hall.

Miscellaneous:
The apartment is part of an Owners Association.
The contribution to the Owners Association is € 192.65 per month and includes among others:
- building insurance;
- maintenance reserve;
- insurances;
- association costs.
- daily maintenance;
- utilities for common areas;
- etc.

Features

Transfer of ownership
Asking Price
€ 739.000 k.k.
Status
verkocht onder voorbehoud
Acceptance
in overleg
Construction
Kind of house
Benedenwoning
Building type
appartement
Construction period
2004
Energy rating
A
Roof type
plat dak
Bedrooms
2
Bathrooms
1
Surface Areas And Volume
Living Area
153 m2
Other indoor space
19 m2
Exterior space attached to the buildinge
70 m2
Volume in cubic meters
568 m3
Plot Size
30430 m2
Facilities
Buitenzonwering
Schuifpui
Natuurlijke ventilatie
Aan water
In woonwijk
Baerz & Co Property Brochure

Brochure

Videos

Floor Plans

de Haan Schippers Makelaars

Larenseweg 53
7241 CM Lochem

dehaan@dehaanschippers.nl
+31 573 25 82 58

www.dehaanschippers.nl

Information / Viewing request

Jenne de Haan profile image
Jenne de Haan
Real Estate Agent

Buying a Luxury Property in Tholen

Tholen offers a harmonious blend of heritage, privacy, and scenic living for international families and investors. Discreet luxury, strong community ties, and tailored services underpin its enduring global appeal.