This country house Venlo redefines sustainable living, blending forward-thinking design with tranquility. Entering the 227 m² interior, the focus keyword, country house Venlo, is realized in understated, future-proof comfort. The home holds an A++ energy label, supported by 16 solar panels, a hybrid heat pump, and comprehensive insulation, delivering efficiency and ease with energy costs of just €160 per month.
The main living space, measuring 62 m², is illuminated by a bay window and features a fireplace, roof window, and sliding doors that open directly to a landscaped, private garden on a plot of 754 m². The adjoining kitchen and utility room provide practical luxury, while automatic sunshades soften the mood. Nearly the entire ground floor benefits from underfloor heating and cooling. The master suite on this level, measuring 16 m², is complemented by an en-suite bathroom, ensuring privacy and accessibility.
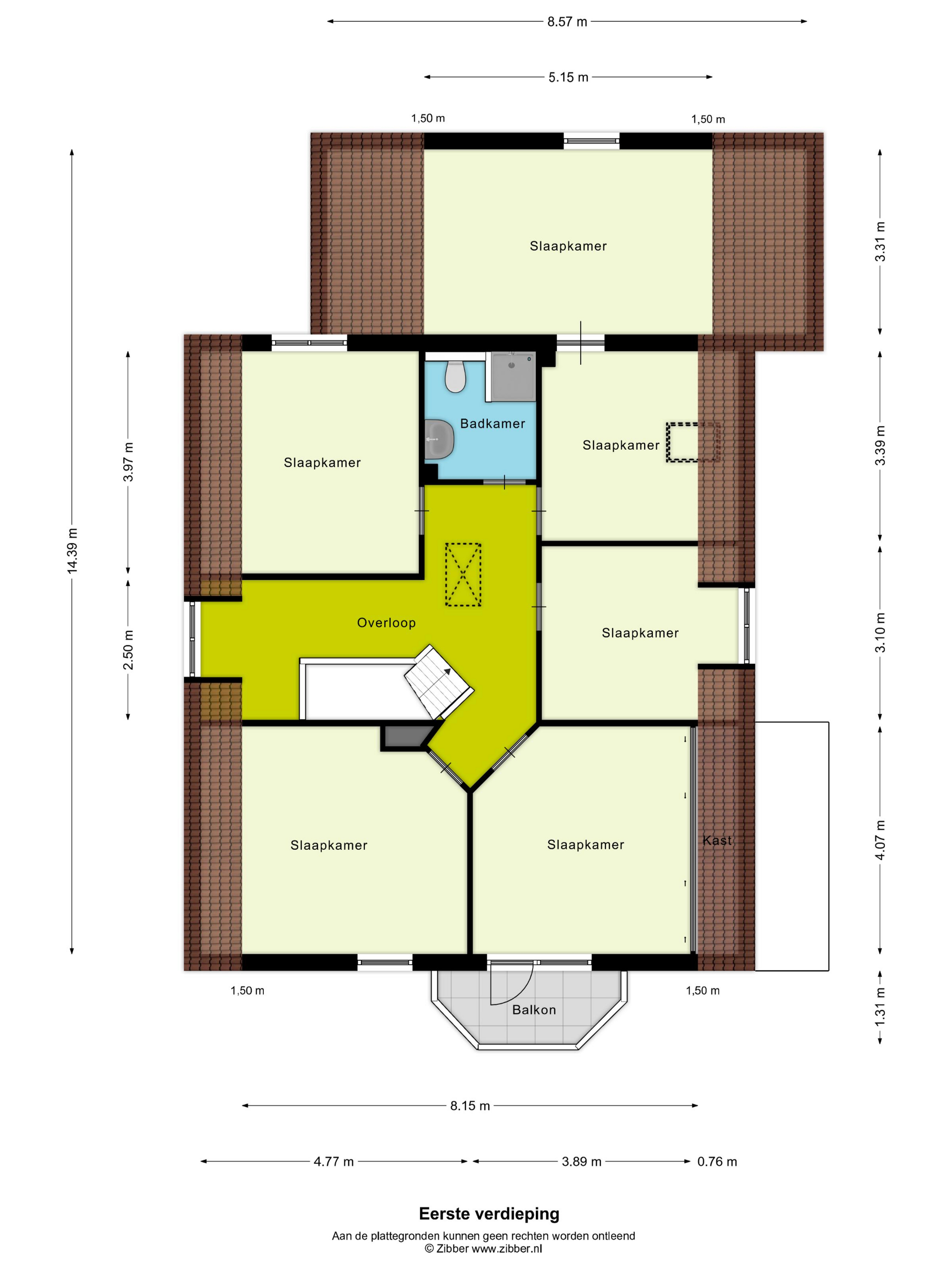
Five further bedrooms and a second bathroom occupy the first floor, with one bedroom accessing a potential wellness area and another opening to a balcony. A cellar, attic, and a 21 m² heated garage with sectional door and garden access offer flexible storage and functionality. Outside, multiple seating areas amid mature trees and borders create an enclave of green calm, ideal for quiet family life or outdoor gathering.
Located in a peaceful Dutch-German border area near the Groote Heide nature reserve and within walking distance of sports facilities, this property merges connectedness with escape. Just ten minutes from Venlo’s center and major routes to Eindhoven and Germany, the residence situates itself for those who value peace paired with access. This is a rare opportunity for those seeking a sustainable, comfortable, and spatially generous country house for sale in Venlo.
Explore Venlo with Baerz, Your Trusted Personal Property Finder & Advisor
Premium real estate transactions in Venlo demand a nuanced understanding of local inventory, zoning, and future developments. Experienced advisors offer privileged access to off-market listings and excel at discreet negotiations, positioning clients ahead of evolving market trends. Guidance is crucial for securing the most architecturally significant homes or negotiating favourable investment terms.