Baerz & Co is een landelijk samenwerkingsverband van zorgvuldig geselecteerde boutique luxury makelaars. Samen vormen wij één netwerk, met één gedeeld aanbod. De woningen die u op onze website ziet, zijn afkomstig van alle aangesloten kantoren binnen Baerz & Co. Daardoor is niet ieder object rechtstreeks door ons kantoor in verkoop, maar door een gespecialiseerde collega binnen ons netwerk. Heeft u een woning gevonden die u aanspreekt en wilt u meer informatie? Dan brengen wij u graag persoonlijk in contact met de betreffende verkoopmakelaar, zodat u direct en zorgvuldig wordt begeleid.

AMSTERDAM, NH
Peter Martensstraat 121 - 1087 NA
Nederland

Jenne de Haan profile image
Jenne de Haan
Real Estate Agent
€1.495.011 k.k.
Woonoppervlakte
206m2
Perceeloppervlakte
115m2
Slaapkamers
4

Omschrijving

Peter Martensstraat 121, Amsterdam

* *

Bel nu voor het maken van een afspraak of voor het opvragen van een brochure van dit lichte, ruime en zeer bijzondere heren(hoek)huis met woon/werkbestemming en panoramisch uitzicht over het IJ-meer en op de Diemer Vijfhoek!

* Woonoppervlakte 229 m² (206+23 m²)
* Drie ruime parkeerplaatsen direct onder het pand in de parkeerkelder, uniek in Amsterdam: twee in een eigen afgesloten
dubbele garage (koopsom euro 100.000,= k.k.) en nog een derde voor gasten/cliënten;
alle drie met directe toegang tot de woning.
* Erfpacht afgekocht tot 2058, daarna eeuwigdurend vastgezet canon.
* Dubbele ingangen/entree op de begane grond.
* Twee badkamers.
* Zeer praktische indeling: een grote woonkamer en een ruime eetkamer/keuken, meer dan royale master bedroom
en drie ruime slaap/werkkamers. Kortom ideaal voor wonen én werken onder één dak.
* 3x een ‘buiten’: Fraaie patio, ruim balkon en een groot dakterras.
* Stadstuin, met beplanting rondom het hele huis voor extra privacy.
* Uitbreiding mogelijk met extra opbouw (trappenhuis en aansluitingen reeds aanwezig).
* Energiezuinig en duurzaam label A: vloerverwarming, warmte-terugwininstallatie, HR++ beglazing
* Alarminstallatie.
* Volledig voorzien van airconditioning.
* 14 zonnepanelen.

Indeling:
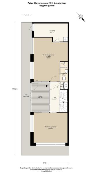
Begane grond
De voordeur leidt via de fijne, besloten patio-tuin naar een gang. Op deze verdieping bevinden zich twee royale kamers en de trap naar de eerste verdieping. Links van de gang bevindt zich een werk/slaapkamer van ruim 22 m² met een eigen douche en toilet. Deze werk/slaapkamer is ook bereikbaar via de tweede entree die leidt naar de ruime en lichte berging, een berging die perfect geschikt is voor opslag of fietsen.

Rechts van de gang op de begane grond bevindt zich een werk/slaapkamer van 18m².

Eerste verdieping – Woonverdieping
De woonverdieping is ruim en heerlijk licht dankzij de grote raampartijen rondom. De woonkamer (40m²) is speels en sfeervol ingedeeld en geeft toegang tot het royale terras met volop zon en een wijds uitzicht over het water en de omgeving – een heerlijke buitenruimte voor elk moment van de dag.

De eetkamer/keuken (18m²) vormt het hart van het huis, uitgevoerd in modern design met opvallende gele fronten, een 5-pits Falcon inductiefornuis (met twee fornuizen en een aparte gril), vaatwasser (Miele), koelkast (Miele) en Quooker. Er is meer dan voldoende ruimte voor een grote eettafel, ideaal voor etentjes of familie-avonden.

Tweede verdieping
Hier bevindt zich de master bedroom van bijna 23m² (inclusief ingebouwde kastenwand), en grote raampartijen met uitzicht op het meer. De tweede slaap/werkkamer (18m²) op deze verdieping heeft een riant uitzicht over het water, de omgeving en de Diemervijfhoek.
Een fijne en zeer lichte badkamer met whirlpool (uitzicht op de patio en het meer!), inloopdouche en dubbele wastafel. Ook op deze verdieping een Separaat toilet en wasmachine/droger ruimte.

Derde verdieping: Dakterras
Een trap van de tweede verdieping leidt naar het royale dakterras (ruim 18m²), één van de eyecatchers van deze woning: groot, zonnig en met vrij uitzicht over het water en de wijk. De hoge glazen omheining (voorkomt wind!) en de vlondervloer geeft deze buitenruimte een moderne, open uitstraling met toch veel privacy.

Kelderverdieping en parkeren
Op de kelderverdieping (22m²) bevinden zich een grote en hoge berging en de toegang tot parkeergarage. Direct achter de deur naar de parkeergarage is de losse parkeerplek voor gasten/cliënten. Daarnaast ligt de afgesloten privé-garage van bijna 28m², ruim voldoende voor twee auto’s – een absolute zeldzaamheid in Amsterdam.

De VvE (alléén voor de parkeergarage) rekent een bescheiden maandelijkse bijdrage van € 99,03 voor de drie parkeerplaatsen in de beveiligde afgesloten parkeergarage (ook te bereiken met lift).

Duurzaamheid
Duurzaam is deze woning zeker. De zonnepanelen (eigendom) zijn geplaatst in 2019 en 2021. De opbrengst is ca. 3.000 kWh per jaar, per jaar. Ideaal uit comfort- en kostenoverwegingen omdat er airconditioning aanwezig is die ook kan verwarmen (Daikin: 6 binnen-units aangestuurd door twee buitenunits). De combinatie met dak-, muur-, vloerisolatie en HR++ beglazing is dan ook echt goed te noemen.

Omgeving
Het herenhuis ligt in IJburg-Zuid, een fraaie wijk met veel water en veel groen (zoals het enorme Diemerpark en om de hoek het Theo van Goghpark) en uitstekende voorzieningen.

Op loopafstand bevinden zich winkels, openbaar vervoer en scholen. Nog leuker in dit deel van IJburg is de haven met haar restaurants, coffee-corners en natuurlijk ertegenover het strand. Gewoon om de hoek op loopafstand!

De uitvalswegen naar de A1, A9, A2 en de ringweg A10 zijn zeer snel bereikbaar. Het centrum van Amsterdam is goed bereikbaar met de fiets (30-45 min.) of met de tram (20 min. naar CS, halte Theo van Goghpark, 8 min. lopen). Bussen en snelbussen naar Amsterdam Arena, Watergraafsmeer, Amstelstation, Weesp en het Gooi zijn op 1 minuut lopen te bereiken (halte Peter Martensstraat).

Noemenswaardig:
• Uniek woon-/werk object
• Eeuwigdurend erfpacht overstap gemaakt
• Woonoppervlakte: 229 m² (206+23 m²)
• Zeer praktische indeling
• Duurzame bouw, airconditioning en zonnepanelen
• Drie privé parkeerplaatsen
• Energielabel A
• Meerdere buitenruimten, waaronder een royaal dakterras.
• Schitterende locatie met uitzicht over water

- English version -

Peter Martensstraat 121, Amsterdam

Call now to schedule a viewing or request a brochure for this bright, spacious and truly exceptional corner townhouse with mixed residential/office designation and panoramic views over the IJmeer and the Diemer Vijfhoek nature reserve.

* Living area: 229 m² (206+23 m²)
* Three spacious parking spaces directly beneath the property in the underground garage – unique in Amsterdam: two in a
private enclosed double garage and a third for guests/clients; all three with direct access to the house.
* Leasehold paid off until 2058; thereafter converted to perpetual leasehold with a fixed ground rent.
* Double entrances on the ground floor.
* Two bathrooms.
* Highly practical layout: a large living room and a spacious dining room/kitchen, an exceptionally generous master
bedroom and three spacious bedrooms/offices. In short, ideal for living and working under one roof.
* Three outdoor spaces: a beautiful patio, a spacious balcony and a large roof terrace.
* City garden with greenery surrounding the entire house for added privacy.
* Possibility to extend with an additional rooftop level (stairwell and connections already in place).
* Energy-efficient and sustainable (Energy Label A): underfloor heating, heat recovery ventilation system, HR++ glazing.
* Alarm system.
* Fully equipped with air conditioning.
* 14 solar panels.

Layout
Ground Floor:
The front door leads through the pleasant, private patio garden into a hallway. This level features two generous rooms and the staircase to the first floor.

To the left of the hallway is a spacious office/bedroom of over 22 m² with its own shower and toilet. This room is also accessible via the second entrance, which leads to a large and bright storage room – ideal for storage or bicycles.

To the right of the hallway is an 18 m² office/bedroom.

First Floor – Living Level

The living floor is spacious and wonderfully bright thanks to the large windows on all sides. The living room (40 m²) has a playful and inviting layout and provides access to the generous terrace with abundant sunshine and wide, open views over the water and surrounding area – a delightful outdoor space at any time of day.

The dining room/kitchen (18 m²) forms the heart of the home. It features a modern design with striking yellow fronts, a 5-burner Falcon induction cooker (with two ovens and a separate grill), Miele dishwasher, Miele refrigerator and a Quooker boiling-water tap. There is ample space for a large dining table, perfect for dinner parties or family evenings.

Second Floor

Here you will find the master bedroom of nearly 23 m² (including built-in wardrobes), with large windows overlooking the lake. The second bedroom/office (18 m²) on this floor enjoys magnificent views over the water, the surroundings and the Diemer Vijfhoek.

There is also a pleasant and very bright bathroom with whirlpool bath (with views of the patio and the lake), walk-in shower and double washbasin. This floor also includes a separate toilet and a laundry room with washing machine/dryer connections.

Third Floor – Roof Terrace

A staircase from the second floor leads to the generous roof terrace (over 18 m²), one of the highlights of this property: spacious, sunny and offering unobstructed views over the water and the neighbourhood. The high glass balustrade (providing shelter from the wind) and the decking create a modern, open feel while maintaining plenty of privacy.

Basement and Parking

The basement level (22 m²) includes a large, high-ceilinged storage room and access to the parking garage. Directly behind the garage access door is the separate parking space for guests/clients. In addition, there is a private enclosed garage of nearly 28 m², spacious enough for two cars – an absolute rarity in Amsterdam.

The Homeowners’ Association (VvE) – applicable to the parking garage only – charges a modest monthly contribution of €99.03 for the three parking spaces in the secure, enclosed garage (also accessible by elevator).

Sustainability

This home is certainly sustainable. The owned solar panels were installed in 2019 and 2021 and generate approximately 3,000 kWh per year. This is ideal from both a comfort and cost perspective, particularly as the property is equipped with air conditioning that can also provide heating (Daikin system: 6 indoor units controlled by two outdoor units).

Combined with roof, wall and floor insulation and HR++ glazing, the overall energy performance is excellent.

Surroundings

This townhouse is located in IJburg-Zuid, an attractive neighbourhood characterised by abundant water and greenery (including the expansive Diemerpark and, just around the corner, Theo van Gogh Park), as well as excellent amenities.

Within walking distance you will find shops, public transport and schools. A particular highlight of this part of IJburg is the marina with its restaurants, coffee corners and, directly opposite, the beach – all just around the corner.

Major highways (A1, A9, A2 and the A10 ring road) are quickly accessible. Amsterdam city centre is easily reached by bicycle (30–45 minutes) or by tram (20 minutes to Central Station; Theo van Gogh Park stop, 8 minutes on foot). Buses and express services to Amsterdam Arena, Watergraafsmeer, Amstel Station, Weesp and ’t Gooi depart just a 1-minute walk away (Peter Martensstraat stop).

Highlights
- Unique live/work property
- Transition to perpetual leasehold completed
- Living area: 229 m² (206+23 m²)
- Highly practical layout
- Sustainable construction, air conditioning and solar panels
- Three private parking spaces
- Energy Label A
- Multiple outdoor spaces, including a generous roof terrace
- Stunning location with water views

Kenmerken

Zonnepanelen
Alarm system
Air conditioning
Overdracht
Vraagprijs
€ 1.495.011 k.k.
Status
beschikbaar
Aanvaarding
in overleg
Bouw
Soort woonhuis
Herenhuis
Soort bouw
hoekwoning
Bouwjaar
2010
Energieklasse
A
Slaapkamers
4
Badkamers
2
Oppervlakten en inhoud
Woonoppervlakte
206 m2
Overige inpandige ruimte
23 m2
Gebouwgebonden buitenruimte
42 m2
Externe bergruimte
43 m2
Inhoud
883 m3
Perceeloppervlakte
115 m2
faciliteiten
Alarminstallatie
Tv kabel
Buitenzonwering
Airconditioning
Schuifpui
Glasvezel kabel
Zonnepanelen
Balansventilatie
Aan water
In woonwijk
Vrij uitzicht
Aan vaarwater
Baerz & Co Property Brochure

Brochure

Video’s

de Haan Schippers Makelaars

Larenseweg 53
7241 CM Lochem

dehaan@dehaanschippers.nl
+31 573 25 82 58

www.dehaanschippers.nl

Informatie / bezichtigingsaanvraag

Jenne de Haan profile image
Jenne de Haan
Real Estate Agent

Een luxe woning kopen in Amsterdam

Amsterdam biedt een kosmopolitische levensstijl, gekenmerkt door erfgoed, verbondenheid en discrete luxe. Bewoners profiteren van een sterke internationale gemeenschap, hoogwaardige dienstverlening en een bruisende cultuur. De blijvende aantrekkingskracht van de stad schuilt in de combinatie van geschiedenis, verfijning en een vooruitstrevende geest.