Ons kantoor is lid van Baerz & Co Luxury Homes; een internationaal platform dat exclusieve woningmakelaars met elkaar verbindt. Neem contact op met ons secretariaat voor meer informatie over het landelijke aanbod, waarvan u hieronder een selectie kunt bekijken.

NOORDWIJK
Kweeklust 2 - 2203 ZB
Nederland

Jenne de Haan profile image
Jenne de Haan
Real Estate Agent
€1.595.000 k.k.
Woonoppervlakte
198m2
Perceeloppervlakte
291m2
Slaapkamers
4

Omschrijving

Moderne geschakelde villa gelegen in de geliefde wijk Nieuw-Offem
Een prachtig familiehuis met garage, een zonnige tuin met veranda in een sfeervolle, kindvriendelijke wijk nabij voorzieningen. De moderne villa biedt stijl, luxe en comfort – een woning die goed onderhouden en instapklaar is.
• 4 slaapkamers
• 2 badkamers
• op fietsafstand van strand en zee
• nabij alledaagse voorzieningen
• energielabel A

Bouwjaar 2020, woonoppervlakte 198m2, inhoud 768m3, perceel 291m2

We nemen je mee….
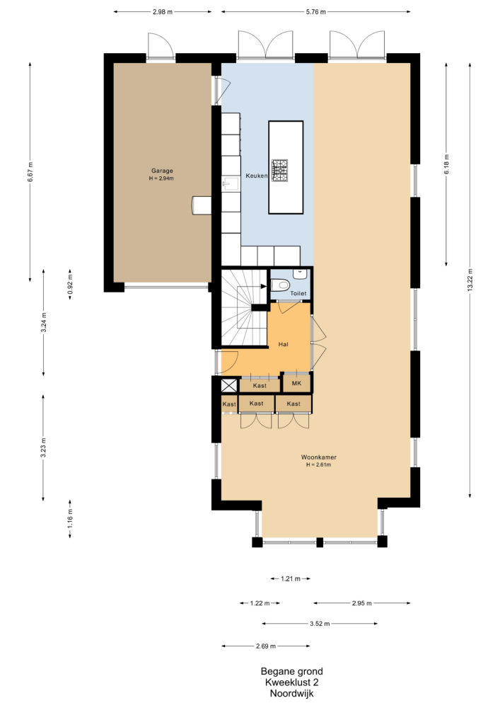
In de hal, met garderobekast en gastentoilet, geven stalen deuren toegang tot de ruime, zeer lichte woonkamer met fraai wandmeubel en een grote erker. Aan de achterzijde van de woning is de ruime woonkeuken met kookeiland gesitueerd - perfect om samen te komen met familie en vrienden. Twee paar openslaande deuren naar de tuin maken dat binnen en buiten moeiteloos in elkaar overlopen. Dankzij de vloerverwarming geniet je hier het hele jaar door van een behagelijke temperatuur.

Eerste verdieping
Op de eerste verdieping bevinden zich drie ruime slaapkamers met grote raampartijen die veel licht binnenlaten. De luxe badkamer is voorzien van een ruime inloopdouche en straalt comfort en stijl uit. Op de overloop is en separaat toilet.

Tweede verdieping
De tweede verdieping is een heerlijk privéverblijf: een royale slaapkamer met een eigen inloopkast en een ruime, luxe badkamer. Een ideale plek om volledig tot rust te komen. Tevens is er een was-/stookruimte welke is voorzien van een Japans toilet.

Tuin
De zonnige tuin (ZW) met veranda maakt het woongenot compleet. Hier kun je alle seizoenen genieten van het buitenleven. De achterom zorgt voor een handige extra toegang tot de achtertuin.
Voor de garage is er parkeergelegenheid op eigen terrein en tevens is er een oplaadpunt voor de elektrische auto. De beukenhaag zorgt voor een sfeervolle tuinafscheiding.

Duurzaamheid
• gebouwd in 2020 is deze woning uitstekend geïsoleerd.
• vloerverwarming op de begane grond
• isolerende beglazing
• 6 zonnepanelen
• energielabel A.

Locatie
De ligging is minstens zo aantrekkelijk: voorzieningen zoals winkels, scholen en restaurants liggen binnen handbereik en het historisch centrum, strand en zee liggen op fietsafstand.

Pluspunten van deze woning
• vloerverwarming op de begane grond
• waterontharder
• alarminstallatie met camera’s en bewegingssensoren
• airconditioning
• WarmteTerugWin-installatie
• garage vanuit de woning te bereiken
• 6 zonnepanelen
• zonnige tuin (ZW) met veranda
• op fietsafstand van voorzieningen, strand en zee
• goed onderhouden en instapklaar

Makelaar Frits Wilbrink leidt je graag rond.
Bel ons kantoor voor een afspraak!

Kenmerken

Alarm system
Air conditioning
Overdracht
Vraagprijs
€ 1.595.000 k.k.
Status
beschikbaar
Aanvaarding
in overleg
Bouw
Soort woonhuis
Villa
Soort bouw
geschakelde woning
Bouwjaar
2020
Energieklasse
A
Soort dak
samengesteld dak
Slaapkamers
4
Badkamers
2
Oppervlakten en inhoud
Woonoppervlakte
198 m2
Overige inpandige ruimte
20 m2
Externe bergruimte
21 m2
Inhoud
768 m3
Perceeloppervlakte
291 m2
faciliteiten
Mechanische ventilatie
Alarminstallatie
Airconditioning
Glasvezel kabel
Balansventilatie
Aan rustige weg
In woonwijk
Baerz & Co Property Brochure

Brochure

Video’s

Plattegronden

de Haan Schippers Makelaars

Larenseweg 53
7241 CM Lochem

dehaan@dehaanschippers.nl
+31 573 25 82 58

www.dehaanschippers.nl

Informatie / bezichtigingsaanvraag

Jenne de Haan profile image
Jenne de Haan
Real Estate Agent

Een luxe woning kopen in Noordwijk

Noordwijk verenigt stijlvolle kustbeleving, sterke gemeenschapszin en hoogwaardige voorzieningen. Internationale aantrekkingskracht, onopvallende service en een ontspannen sfeer maken het een blijvende keuze voor veeleisende eigenaars.