Ons kantoor is lid van Baerz & Co Luxury Homes; een internationaal platform dat exclusieve woningmakelaars met elkaar verbindt. Neem contact op met ons secretariaat voor meer informatie over het landelijke aanbod, waarvan u hieronder een selectie kunt bekijken.

VEENENDAAL
Bilzekruid 11 - 3903 GN
Nederland

Jenne de Haan profile image
Jenne de Haan
Real Estate Agent
€1.080.000 k.k.
Woonoppervlakte
175m2
Perceeloppervlakte
571m2
Slaapkamers
3

Omschrijving

Royale vrijstaande woning met slaapkamer en badkamer op de begane grond, riante tuin en een grote inpandig te bereiken garage van maar liefst 57 m².

Zodra u de oprit oprijdt, ervaart u het: rust, volop ruimte en kwaliteit. Deze royale vrijstaande woning met een woonoppervlakte van ca. 175 m², gelegen op een perceel van 571 m² is uitstekend onderhouden en straalt vanaf de eerste aanblik klasse uit. Binnen treft u een lichte woonkamer, een gezellige woonkeuken, een slaapkamer met badkamer op de begane grond en twee zeer ruime slaapkamers op de verdieping. De praktische bijkeuken en tweede badkamer maken het wooncomfort compleet. De verrassend grote garage (57 m²!) biedt talloze mogelijkheden – van hobbyruimte tot opslag of zelfs een extra werkplek of slaapkamer. Rondom de woning ligt een prachtig aangelegde tuin met meerdere zitplekken, volwassen beplanting, een vijver en volop privacy. Hier geniet u van het buitenleven zonder concessies te doen aan comfort of bereikbaarheid. Deze woning combineert degelijk vakmanschap met functionele luxe – en is daarmee een buitenkans voor wie rustig wil wonen met veel extra ruimte achter de hand.

De buurt
Deze woning is gelegen in het geliefde petenbos. Hier woont u in een rustig hofje, ruim van opzet met veel groen. In de directe omgeving vindt u basisscholen, supermarkten en sportfaciliteiten. Bovendien ligt natuurgebied Prattenburg op loop/fietsafstand, evenals het winkelcentrum van Veenendaal en het NS-station. U woont hier dus heerlijk vrij, maar nooit afgelegen. De omgeving kenmerkt zich door nette, vrijstaande woningen op ruime kavels – een prettige en veilige plek waar buren elkaar groeten. Via de nabijgelegen Rondweg en de A12 bent u snel onderweg richting Utrecht, Arnhem of Amersfoort.

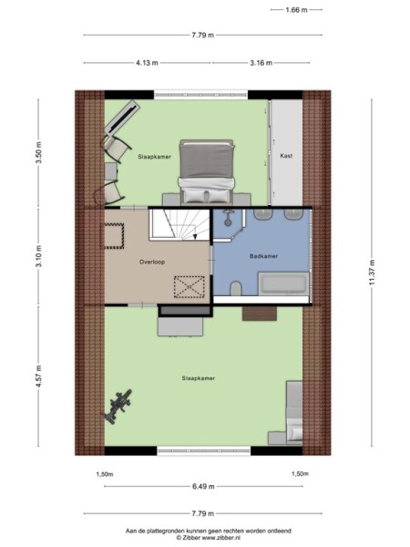
Begane grond
De overdekte entree leidt u naar een royale hal met garderobe, meterkast, trapopgang en een keurig toilet met fonteintje. Vanuit de hal, met natuurstenen vloer, bereikt u de woonkamer en de slaapkamer, welke ook kan fungeren als werkkamer.

De sfeervolle woonkamer is opvallend licht dankzij de grote erker aan de voorzijde en het brede raam aan de zijkant. De zithoek rondom de open haard vormt een gezellige plek voor lange avonden met familie of vrienden. Richting de achterzijde is ruimte voor een royale eethoek bij de open keuken. De keuken is een U-opstelling met schiereiland, voorzien van crèmekleurige fronten, donker werkblad en complete inbouwapparatuur: een inductiekookplaat, vlakscherm afzuigkap, combimagnetron, oven, koel-/vriescombinatie en een vaatwasser. Aansluitend ligt de praktische bijkeuken met witgoedaansluitingen, opbergruimte en een buitendeur naar het terras. Tot slot bevindt zich op de begane grond een extra kamer – ideaal als thuiskantoor, hobbyruimte, speelkamer of slaapkamer. Via deze kamer bereikt u binnendoor de badkamer – met douche, toilet en wastafel – handig voor wie levensbestendig wil wonen of gasten ontvangt. Daarnaast zijn de deuren op de begane grond breed waardoor ze ook toegankelijk zijn voor een rolstoel.

Eerste verdieping
De overloop op de eerste verdieping is verrassend ruim en biedt toegang tot twee comfortabele slaapkamers. De slaapkamer aan de voorzijde is extra royaal met uitzicht op de rustige straat. Deze kan ook gesplitst worden, zodat er een extra kamer gecreëerd wordt. Aan de achterzijde ligt nog een volwaardige slaapkamer, voorzien van een inbouwwandkast. De badkamer is fris en functioneel ingericht met een ligbad, separate douche, dubbele wastafel, tweede toilet en een groot raam dat zorgt voor veel daglicht.

Tweede verdieping
Een vlizotrap brengt u naar de zolderverdieping: een royale bergzolder met stahoogte in het midden, dubbel dakraam en volop opbergmogelijkheden.

Buitenruimte
De tuin rondom is tot in de puntjes verzorgd. Aan de voorzijde biedt de brede oprit plaats aan meerdere auto’s, onder de carport staat uw auto beschut. Vanaf hier heeft u bovendien direct toegang tot de garage, met overhead- en loopdeur – een bijzonder ruime en multifunctionele ruimte van maar liefst 57 m². Ideaal voor dagelijks gebruik, voor het veilig stallen van fietsen, het uitvoeren van klusprojecten of het inrichten van een royale werk- of hobbyruimte met eigen entree. De achtertuin is een lust voor het oog: een groot zonneterras met sierbestrating, strak gazon, een vijver en borders vol kleur en variatie. Dankzij de volgroeide hagen, bomen en de achterliggende bosschage geniet u hier in alle rust en privacy. Of u nu buiten wilt ontbijten, een boek leest onder de boom of gasten ontvangt tijdens een zomeravond – het kan hier allemaal. En met directe toegang vanuit de woonkamer, bijkeuken én garage is deze tuin ook nog eens bijzonder praktisch ingedeeld.

Algemene gegevens
- Type woning: Vrijstaand
- Bouwjaar: 1997
- Aantal kamers: 4
- Aantal slaapkamers: 3 (mogelijkheid om uit te breiden)
- Aantal badkamers: 2 waarvan eentje op de b.g.g.
- Parkeerruimte: voldoende aanwezig op de eigen oprit
- Aanwezig: dakkapel/garage/bijkeuken
- Ligging tuin: zuidoost
- Tuin bereik: zijkant, via de garage en via de woning

Technische gegevens
- Warmwatervoorziening: Remeha Calenta 40C bj. 2015
- Verwarmvoorziening: Remeha Calenta 40C bj. 2015
- Vloerverwarming: beneden verdieping
- Gashaard: aanwezig
- Voorzieningen: vliering
- Natuurlijke ventilatie: aanwezig
- Isolatie: dak/spouw/vloer geheel
- Dubbel glas: geheel
- Glasvezel kabel
- Kozijnen: hout
-onderhoud: uitstekend

WILT U EVEN BINNEN KIJKEN?

Voor meer informatie omtrent deze woning, kunt u contact opnemen met ons kantoor in Veenendaal.

U bent van harte welkom! De beste indruk van deze woning krijgt u natuurlijk tijdens een bezichtiging. Wij proberen onze bezichtigingen altijd in samenspraak met verkoper en koper te plannen en nemen ruim de tijd, zodat u op uw gemak de woning kan bekijken en ervaren.
N.B. Aan de samenstelling van deze gegevens is maximale zorg besteed. Aan onvolkomenheden in de vermelde gegevens en tekeningen kunnen geen rechten en aanspraken worden ontleend.

Kenmerken

Garage
Overdracht
Vraagprijs
€ 1.080.000 k.k.
Status
Available
Aanvaarding
In Concert
Bouw
Soort woonhuis
Single Family House
Soort bouw
Detached House
Bouwjaar
1997
Energieklasse
B
Soort dak
front gable
Slaapkamers
3
Badkamers
2
Oppervlakten en inhoud
Woonoppervlakte
175 m2
Overige inpandige ruimte
57 m2
Gebouwgebonden buitenruimte
18 m2
Inhoud
862 m3
Perceeloppervlakte
571 m2
faciliteiten
Cable Tv
Fluetube
Fibreopticcable
Garage
Garden
Skylight
Baerz & Co Property Brochure

Brochure

Video’s

Plattegronden

de Haan Schippers Makelaars

Larenseweg 53
7241 CM Lochem

dehaan@dehaanschippers.nl
+31 573 25 82 58

www.dehaanschippers.nl

Informatie / bezichtigingsaanvraag

Jenne de Haan profile image
Jenne de Haan
Real Estate Agent

Een luxe woning kopen in Veenendaal

Veenendaal biedt een perfecte balans tussen rust, stedelijke elegantie en veelzijdige voorzieningen. Privacy, groen wonen en internationale connecties staan centraal, ondersteund door hoogstaande vastgoedservices voor een wereldwijde, veeleisende clientèle.