Ons kantoor is lid van Baerz & Co Luxury Homes; een internationaal platform dat exclusieve woningmakelaars met elkaar verbindt. Neem contact op met ons secretariaat voor meer informatie over het landelijke aanbod, waarvan u hieronder een selectie kunt bekijken.

ZOETERMEER
Bellefleurhof 12 0 ong - 2728 KH
Nederland

Jenne de Haan profile image
Jenne de Haan
Real Estate Agent
€1.345.000 k.k.
Woonoppervlakte
382m2
Perceeloppervlakte
N/A
Slaapkamers
9

Omschrijving

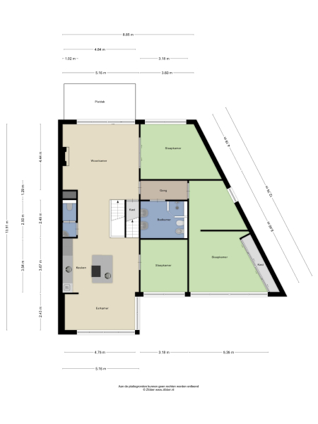
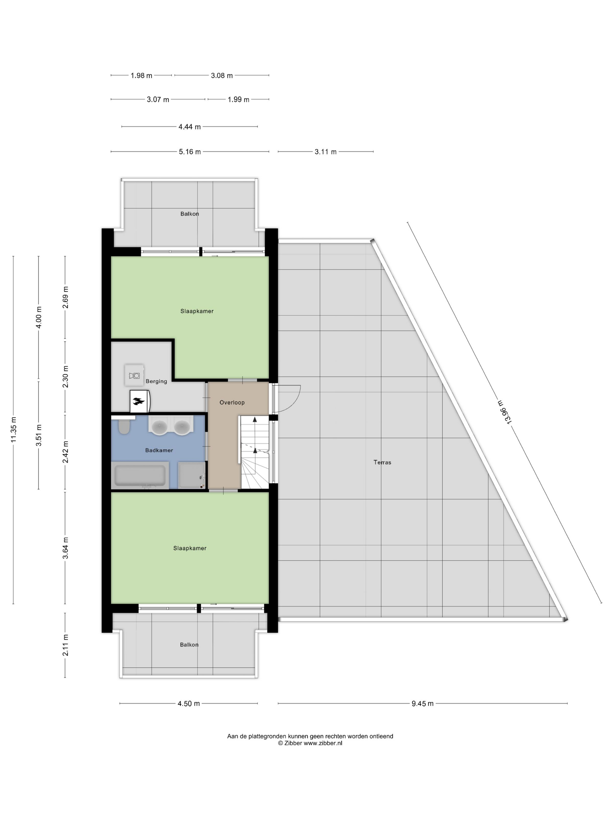
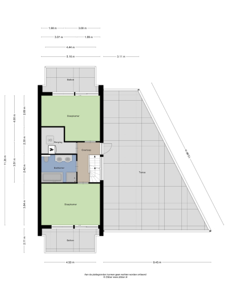
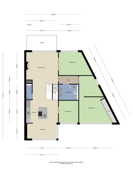
MEERDERE WONINGEN ONDER ÉÉN DAK. 2 WOONKAMERS, 2 KEUKENS, 9 SLAAPKAMERS, 3 BADKAMERS;
Aan de Bellefleurhof 12 in Zoetermeer vind je een unieke wooncombinatie: twee volledige wooneenheden onder één dak, elk met een eigen huisnummer. Perfect voor dubbele bewoning, mantelzorg, kangoeroewonen of een combinatie van wonen en werken. Met maar liefst 382 m2 woonoppervlakte, 2 woonkamers, 2 keukens, 3 badkamers en 9 slaapkamers is dit geen standaard huis, maar een plek vol mogelijkheden. Denk aan een gezinsvervangend huis, co-housing of royaal wonen met ruimte voor gasten of een au-pair, maar een praktijk aan huis behoort ook tot de mogelijkheden. De huidige indeling maakt het eenvoudig om samen te wonen met behoud van privacy.

GROOT, LICHT EN LUXE AFGEWERKT
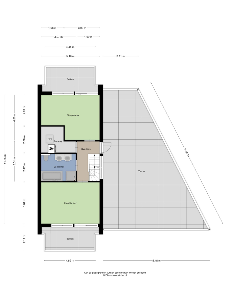
De woonruimtes zijn royaal opgezet en licht door de grote raampartijen. Elke woning heeft een eigen woonkamer met uitzicht op het groen rondom het huis. De keukens zijn praktisch ingericht en sluiten goed aan op de leefruimtes. In totaal zijn er drie moderne badkamers aanwezig, en door de verdeling over vier woonlagen is er altijd een rustige plek te vinden. De slaapkamers zijn verdeeld over alle verdiepingen, met ruimte voor grote bedden, bureaus en kasten. De huidige bewoners hebben de woning keurig onderhouden; de afwerking is strak en eigentijds. Dankzij HR++ beglazing, aluminium kozijnen, dak-, muur- en vloerisolatie, en 12 zonnepanelen is dit huis ook nog eens energiezuinig (energielabel A).

GENIETEN VAN BUITENRUIMTE OP IEDER NIVEAU
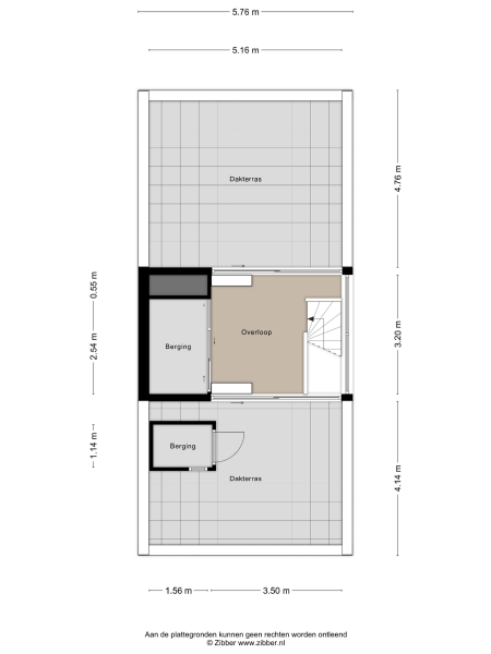
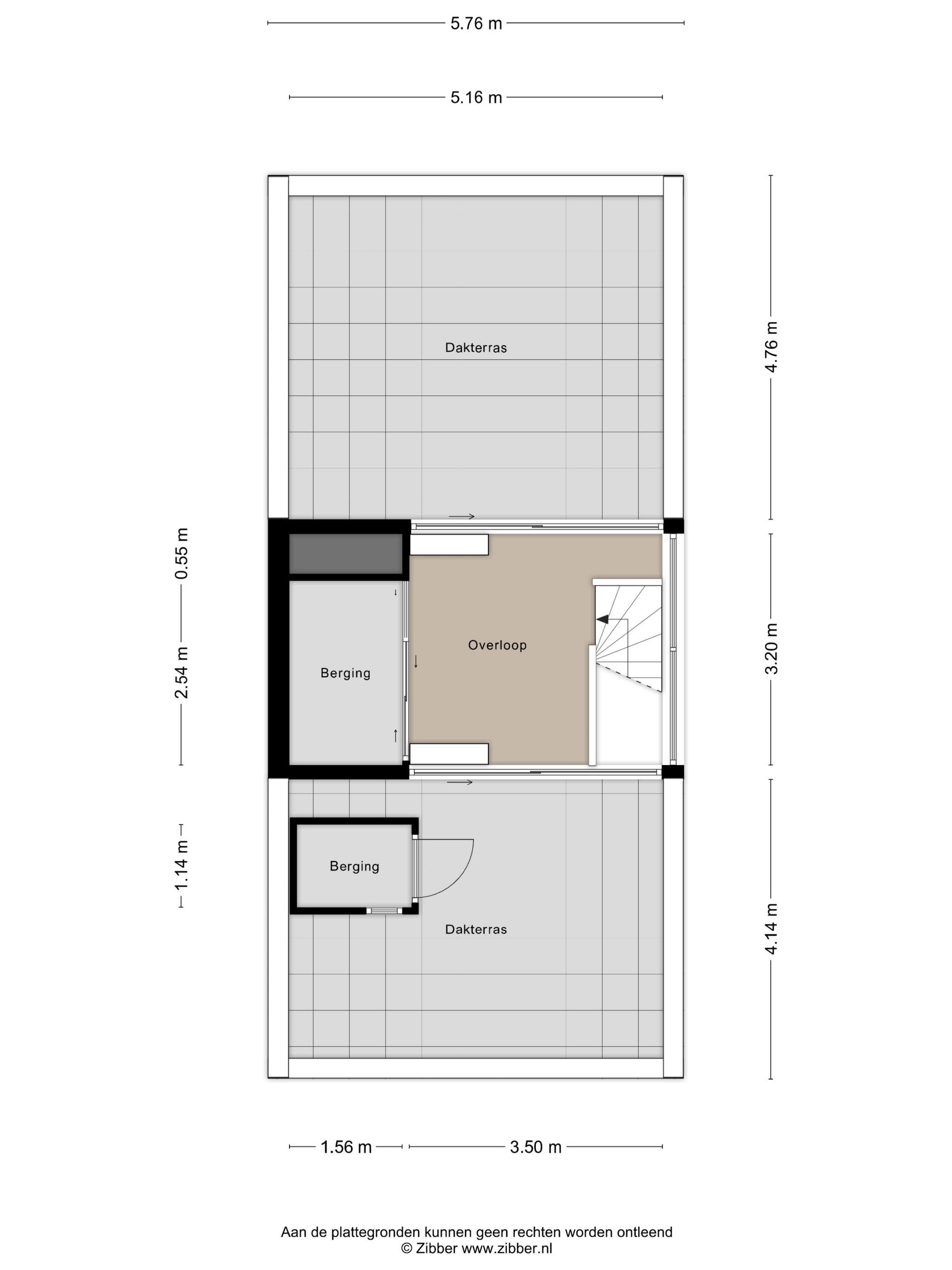
De buitenruimte is al net zo indrukwekkend: in totaal 168 m2 aan buitenruimte verdeeld over een ruime voortuin, achtertuin, 3 balkons en 3 dakterrassen. Hierdoor heb je altijd een plek in de zon én privacy. Op eigen terrein is ruimte om te parkeren onder de carport en er is zelfs een eigen laadpaal aanwezig. De ligging in een groene, rustige wijk van Zoetermeer maakt het woongenot compleet. Vanuit de woonkamer kijk je vrij uit over een groenstrook en volwassen bomen – een zeldzame combinatie van ruimte, privacy en natuur binnen handbereik.

IDEAAL VOOR SAMENWONEN OF ZELFSTANDIG GEBRUIK
Dit zeer riante halfvrijstaande herenhuis biedt uitzonderlijk veel ruimte en flexibiliteit. Met een woonoppervlakte van maar liefst 382 m2, een inhoud van 1.262 m3 en een totale buitenruimte van 168 m2 behoort deze woning tot de ruimste in Zoetermeer. Het huis bestaat uit 4 volwaardige verdiepingen en beschikt over 2 woonkamers, 2 keukens, 3 badkamers en maar liefst 9 slaapkamers. Daarnaast geniet je hier van volop buitenruimte dankzij de voor- en achtertuin, 3 balkons en 3 dakterrassen. Of je nu kiest voor dubbele bewoning, mantelzorg, wonen met een groot gezin of een combinatie van wonen en werken – deze woning biedt alle ruimte en indelingsmogelijkheden die je nodig hebt. Er zijn 2 huisnummers (12A en 12B) met een formele splitsing maar uiteraard is volledig zelfstandig gebruik ook mogelijk.

OVER DE WIJK NOORDHOVE DEEL II IN ZOETERMEER
Noordhove deel II is een rustige, groene en geliefde woonwijk in Zoetermeer. De wijk kenmerkt zich door moderne bouw, brede straten, veel openbaar groen en een kindvriendelijke sfeer. In de directe omgeving vind je basisscholen, sportvoorzieningen, het Noord-Aa recreatiegebied en winkelcentrum Noordhove voor de dagelijkse boodschappen. Met de mooie Benthuizerplas op loopafstand is ook ontspanning in de natuur altijd dichtbij. Dankzij de goede verbindingen naar de A12, Den Haag en het centrum van Zoetermeer, woon je hier in alle rust maar met alles binnen handbereik. Ook het openbaar vervoer is goed geregeld, met bushaltes en RandstadRail in de buurt. Een ideale locatie voor wie ruim, rustig en toch centraal wil wonen.

BIJZONDERHEDEN

- Bouwjaar 2002
- Goede staat van onderhoud
- woonoppervlakte totaal 382 m2
- 168 m2 totale buitenruimte
- 1262 m3 inhoud
- 2 keukens, 2 woonkamers, 3 badkamers, 9 slaapkamers
- voortuin, achtertuin, 3 balkons, 3 dakterrassen
- 4 verdiepingen
- Energielabel A
- Voorzien van 12 zonnepanelen
- Voorzien van onderhoudsarme aluminium kozijnen met HR++ beglazing
- Dak-, muur- en vloerisolatie
- Vloerverwarming op de begane grond
- Carport en parkeergelegenheid op eigen terrein
- Laadpaal op eigen terrein;
- Ruim voldoende parkeergelegenheid voor en direct nabij de woning
- Reeds gesplitst in appartement; Bellefleurhof 12a en 12b. Eventueel apart te koop.
- Er is een vergunning aanwezig om een extra slaapkamer van 24 m2 te realiseren (achterzijde, derde verdieping).

OPLEVERING: IN OVERLEG

Kenmerken

Zonnepanelen
Air conditioning
Overdracht
Vraagprijs
€ 1.345.000 k.k.
Status
beschikbaar
Aanvaarding
in overleg
Bouw
Soort woonhuis
Herenhuis
Soort bouw
halfvrijstaande woning
Bouwjaar
2002
Energieklasse
A
Soort dak
plat dak
Slaapkamers
9
Badkamers
3
Oppervlakten en inhoud
Woonoppervlakte
382 m2
Overige inpandige ruimte
0 m2
Gebouwgebonden buitenruimte
168 m2
Externe bergruimte
9 m2
Inhoud
1262 m3
faciliteiten
Airconditioning
Rookkanaal
Schuifpui
Frans balkon
Glasvezel kabel
Zonnepanelen
Aan park
In woonwijk
Vrij uitzicht
Baerz & Co Property Brochure

Brochure

Video’s

Plattegronden

de Haan Schippers Makelaars

Larenseweg 53
7241 CM Lochem

dehaan@dehaanschippers.nl
+31 573 25 82 58

www.dehaanschippers.nl

Informatie / bezichtigingsaanvraag

Jenne de Haan profile image
Jenne de Haan
Real Estate Agent

Een luxe woning kopen in Zoetermeer

Zoetermeer is een eigentijdse en gastvrije stad voor wie waarde hecht aan luxe, culturele voorzieningen en vlotte verbindingen. Bewoners profiteren van discrete service, hoogwaardige woningen en een internationale ambiance in een rustige, maar levendige leefomgeving.